ARC+ vi offre un nuovo modo di presentera i vostri progetti !
Una gamma completa e potenti strumenti 2D, totalmente integrati in ARC+ e accompagnata da una nuova libreria di simboli architettonici 2D eccezionali.
Oggetti creati da grafici professionisti ed esperti !
Da ARC+ 2009 Edition è possibile beneficiare di questa eccezionale libreria, di facile accesso e utilizzo.
Oltre 2000 oggetti sono disponibili con più di 300 tessiture per rivestire i pavimenti, i giardini e i prospetti dei vostri disegni . Tutto in formato nativo di ARC+.
Arricchisci la tua comunicazione grafica. Migliora le tue presentazioni piante/prospetti, sezioni e in pochi minuti è pronta la presentazione per le tavole dei vostri concorsi.
Questa nuova libreria consente di creare nuovi stili di presentazione, rispettando l’ armonia degli spazi interni ed esterni dei vostri progetti.
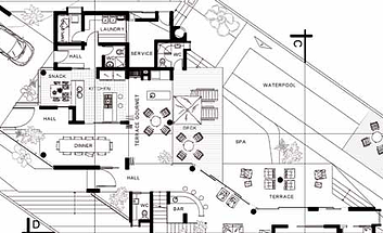
Partendo da un vostro disegno tecnico…
I materiali di grande dimensione e di alta risoluzione possono essere facilmente integrati nel file. Le immagini con il canale alfa si integrano perfettamente nel vostro disegno.
Realizzate un render perfettamente omogeneo con il vostro tocco personale.
Ora il vostro progetto, completamente « realizzato con ARC+» è pronto per la consegna…
Nuovi strumenti per l’ elaborazione delle immagini, integrati in ARC+, rendono più facile il vostro lavoro e otterrete un risultao di alta qualità.

